In een voormalige bedrijfsruimte is een uniek stadsappartement gecreëerd. Het LOFT appartement van circa 146 m² is geheel gelijkvloers en door de prachtige tuin en diverse patio’s een oase van rust in de levendige Pijp. Het loftachtige appartement heeft een open karakter door het gebruik van het glas, de hoge plafonds en de verschillende doorkijkjes naar buiten. 

Rondleiding
De woning beschikt over een eigen entree vanaf de straat en biedt directe toegang tot een royale open ruimte. Deze ruimte is multifunctioneel in te richten en leent zich uitstekend als atelier, speelruimte of ruime eetkamer. Via een centrale gang wordt het achterhuis bereikt, gelegen aan de rustige binnentuin en ingericht als een besloten woonvertrek waar privacy en rust gewaarborgd zijn.
De eigentijdse keuken is gesitueerd naast een beschutte patio en is uitgerust met luxe inbouwapparatuur van Bosch. De living is rijk aan daglicht dankzij grote raampartijen en een royaal daklicht. De ruimte biedt plaats aan een grote eettafel, met aansluitend een zitgedeelte rond een op maat vervaardigd meubel met geïntegreerde televisieopstelling en gashaard.
De woning omvat drie volwaardige slaapkamers. De twee grootste kamers delen een hoogwaardige badkamer met ligbad, dubbele wastafel, inloopdouche en toilet. De derde slaapkamer beschikt over een eigen en suite badkamer met douche en wastafel. Een separaat toilet is geplaatst in de gang.

Buurtgids 
Gelegen in het eerste, rustige deel van de Van Ostadestraat – tussen de Ruysdaelkade en de Ferdinand Bolstraat – bevindt zich dit stadsobject te midden van een levendige en jonge buurt.
De omgeving kenmerkt zich door een rijke schakering aan culinaire adressen. Favorieten in de directe omgeving zijn onder andere Café Caron, restaurant En met een Japanse signatuur, en de ongedwongen sfeer bij Volt. Ook Brut de Mer, Petit Caron en Sir Hummus dragen bij aan het veelzijdige karakter van deze buurt.
Het dagelijkse leven wordt verrijkt door een breed palet aan speciaalzaken en verse producten op de nabijgelegen Albert Cuypmarkt. Voor wie op zoek is naar unieke woonaccessoires of mode, biedt de Gerard Doustraat een verrassend aanbod. De beleving wordt compleet met onder meer de gerenommeerde kookwinkel Duikelman – een begrip onder fijnproevers en thuiskoks.

Bijzonderheden
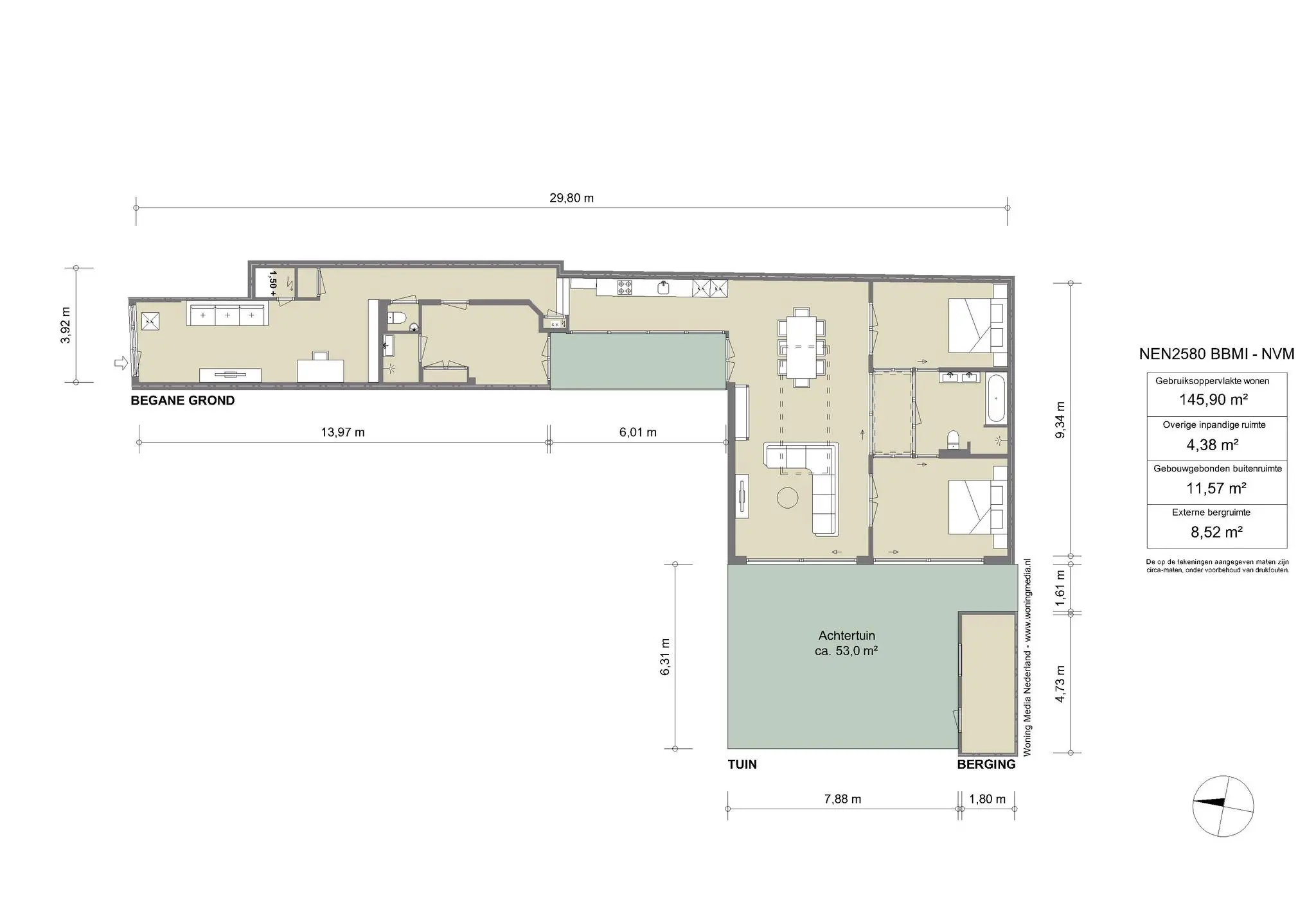
•    Gebruiksoppervlakte wonen circa 146 m²
•    Royale zonnige tuin van circa 53 m² gelegen op het zuid-westen
•    Gelegen op eigen grond
•    Schuur in de tuin van 8,5 m²
•    Twee prachtige patio’s
•    Drie slaapkamers
•    Twee badkamers, waarvan één met bad en toilet
•    Eén separaat toilet
•    Gashaard
•    Recent gerenoveerd (2025)
•    Vloerverwarming gehele appartement
•    Inbouwspots
•    Eigen CV-installatie
•    Actieve en gezonde VVE

Kenmerken
Van Ostadestraat 62H, Amsterdam
Vraagprijs
  • € 1.695.000 k.k.
Beschikbaarheid
  • In overleg
Vertrekken
  • 4 kamers
  • 3 slaapkamers
  • 2 badkamers
Onderhoud
  • Intern: Goed
  • Extern: Goed
Oppervlakten & Inhoud
  • Woonoppervlakte: 146 m²
  • Overige inpandige ruimte: 4 m²
  • Gebouwgebonden buitenruimte: 12 m²
  • Externe bergruimte: 9 m²
  • Tuinoppervlakte: 53 m²
  • Perceeloppervlakte: 40 m²
Bouwjaar
  • 1901
Installaties
  • Schuifpui
  • TV kabel
Ligging
  • Aan rustige weg
  • In woonwijk
Parkeren
  • Betaald parkeren
  • Openbaar parkeren
  • Parkeervergunningen
Type verwarming
  • CV Ketel
  • Gashaard
  • Vloerverwarming geheel
Type warmwater
  • CV Ketel
Bestemming
  • Woonruimte
Eigendomssoort
  • Volle eigendom
Buitenruimte
  • Achtertuin
Kadastraal
  • Gemeente: Amsterdam
  • Sectie: V
  • Nummer: 11389
Duurzaamheid
  • Dubbel glas
  • Energielabel B
Soort
  • Appartement
  • Benedenwoning
Bijzonderheden
  • Beschermd stads of dorpsgezicht
  • Toegankelijk voor minder validen
  • Toegankelijk voor ouderen
Overige kenmerken
  • OZB ('25) € 680,86 per jaar
  • Rioolrecht ('25) € 185,20 per jaar
  • Servicekosten VvE € 59,-- per maand
Plattegrond
Van Ostadestraat 62H, Amsterdam
AM106265-1905283-Van-Ostadestraat-62H,-Amsterdam-226596740
AM106265-1905283-Van-Ostadestraat-62H,-Amsterdam-226596778
Documenten
Van Ostadestraat 62H, Amsterdam
Locatie
Van Ostadestraat 62H, Amsterdam
Kunst & cultuur
35bbaf_61b11900b0874d829350247b7015092d~mv2
01
Adres
Van Ostadestraat 43A,
1072 SN Amsterdam

GoMulan Gallery

In 2018 opende GoMulan Gallery haar deuren als een pop-up galerie, opgericht door Mulan Go (1998). Slechts drie maanden later vestigde de galerie zich permanent als een artistieke ruimte. Het voornaamste doel van deze galerie is het bieden van een platform aan opkomende kunstenaars. De galerie toont zowel opkomende talenten als gevestigde kunstenaars en creëert zo een sterke inhoudelijke brug tussen verschillende generaties.

202309galerie+fleur+&+wouter_MG_0118
WIDE59
02
Adres
Van Ostadestraat 43,
1072 SN Amsterdam

Galerie Fleur & Wouter

Galerie Fleur & Wouter werd in 2019 opgericht door Fleur Feringa en Wouter van Herwaarden. De galerie heeft als missie jongeren te betrekken bij kunst, hen vertrouwd te maken met galerieën en aan te moedigen om kunst te verzamelen. Deze toegankelijke en inclusieve filosofie weerspiegelt zich in alle activiteiten. Ze streven naar begrijpelijke communicatie en heldere verhalen.

 

520x_5c094d5f478b44cc200a784b3e43b7ef68945aa25d160
03
Adres
Ceintuurbaan 338,
1072 GN Amsterdam

Rialto

Rialto is een filmtheater aan de Ceintuurbaan in oude volksbuurt de Pijp. Het opvallende Art Deco gebouw waarin Rialto is gevestigd is ontworpen door architect Jan van Schaik. Het werd in 1920 gebouwd en is daarmee een van de oudste bioscopen in Amsterdam. Filmtheater Rialto heeft een divers aanbod van films die zijn gericht aan een breed publiek. Naast het vertonen van films organiseert Rialto vele verschillende evenementen zoals festivals, lezingen en discussieavonden. Sinds kort heeft Rialto ook een vestiging in het Nieuwe Universiteitsgebouw op de campus van de Vrije Universiteit.

Eten & drinken
Schermafbeelding 2022-09-28 om 17.27.18
Schermafbeelding 2022-09-28 om 17.26.37
04
Adres
Ceintuurbaan 238,
1072 GE Amsterdam

Tapi 'n Bowls

Bij Tapi 'n Bowls bieden ze Braziliaanse gerechten met een moderne jonge twist. De specialiteiten zijn Tapiocas en exotische smoothie bowls. De smoothie bowls worden geserveerd met meer dan 200 verschillende soorten vruchten met verschillende kleuren en smaken. De tapioca is een gerecht van cassave zetmeel, wat erg populair is in het noorden van Brazilië. De Tapioca heeft een knapperige buitenkant en is zacht van binnen. Daarbij is het ook erg gezond omdat het geen geen gluten, vetten, lactose of suiker bevat.

 

10388075_451384665012811_909562328407685569_n
10985537_451384838346127_3104155378018227811_n
05
Adres
Dusartstraat 53 h,
1072 HP Amsterdam

En Japanese kitchen & Sake bar

En Japanese kitchen & Sake bar opent in 2015 zijn deuren. Chef Ken Osawa en Ryuji Ikemizu (restaurant manager), die voorheen bij Yamazato werkten, brengen de originele Japanse keuken in zicht.  Iedere maand maakt chef Ken Osawa (geboren & opgegroeid in Hokkaido) een nieuw menu in 3, 6 of 8 gangen met oog voor de seizoenen. Manager Ikemizu paart deze aan de mooiste sakes. De sashimi en sushi zijn allebei van top kwaliteit en het wordt altijd mooi geserveerd.

 

366463382_3442100836044283_4217378537140301143_n
366411821_293571546686558_858409787167627600_n
06
Adres
Ceintuurbaan 246h,
1072 GG Amsterdam

Ikkoku

Bij Ikkoku izakaya  serveren ze individuele traditionele en bijna niche izakaya-gerechten met hun eigen kijk op sake, wijn en cocktailpairing. De twee eigenaren begonnen tijdens covid in 2020 Sushi Fanatics en opende daarna omakase shigure. Ikkoku is een nieuwe uitdaging omdat ze nog dieper de niche en onbekende wereld van de Japanse keuken ingaan. De individuele à-la-carte gerechten variëren van echt traditionele izakaya-gerechten tot Japanse gerechten die je in Europa niet vaak tegenkomt,

 

IMG_6482-HDR-2048×2048
Sora_02s
07
Adres
Ceintuurbaan 49,
1072 ET Amsterdam

Sora Sapporo

Sora Sapporo Ramen serveert authentieke Japanse ramen en andere Aziatische gerechten. Het restaurant heeft twee vestigingen in Amsterdam, waarvan één is geleden aan de Ceintuurbaan in de Pijp. Het restaurant staat bekend om zijn smaakvolle noedels. Deze noedels worden geïmporteerd uit Japan, waar ze gespecialiseerd zijn in het bereiden van dit product. Ook de bouillon, die deel uit maakt van de miso soep en de tonkotsu shoyu ramen is het proberen waard. Voor degenen die liever thuis van een heerlijke kom noedels genieten: Sora Sapporo Ramen bezorgt ook aan huis.

Sjefietshe-Amsterdam-Restaurant-01
Sjefietshe-Amsterdam-Restaurant-06-750×1000
08
Adres
Van Ostadestraat 1,
1072 SL Amsterdam

Sjefietshé

Sjefietshe is een cevicheria in het midden van de Pijp, met een mooi terras met genoeg plek. Voor eenieder die niet bekend is met het heerlijke Zuid-Amerikaanse gerecht: het klassieke Peruviaanse voorgerecht bestaat uit rauwe (wit) vis die ‘gegaard’ is in limoensap. Het gerecht wordt geserveerd met chili, koriander, rode ui en een oceaan aan limoen. Een overdonderende smaaksensatie en daarom ook moeilijk om goed te evenaren. Sjefietshe doet een goede poging en maakt met een Amsterdamse flair een goede eigen variant. Naast de ceviches met verschillende soorten vis is er ook de optie om van lekkere bites te genieten, waaronder de Sjefietshe special: de door hun uitgevonden ‘hotdoctopus’. Genoeg redenen om hier dus langs te gaan en voor jezelf te besluiten of de zaak erin slaagt je mee te nemen naar hogere Zuid-Amerikaanse sferen!

image-asset
09
Adres
Ceintuurbaan 71 H,
1072 EW Amsterdam

Kafé Kontrast

Kafé Kontrast is ontstaan uit de liefde voor het ongecompliceerde. Ze laten zich  inspireren door hun Scandinavische roots en de charme van cafés in Zuidoost-Azië.  De essentie is om een ruimte te creëren waar mensen kunnen eten, drinken en gewoon zichzelf kunnen zijn. Op doordeweekse dagen bieden ze een diner aan en in het weekend serveren ze brunch.

273527792_1094120731373914_3723216352655897476_n
273504397_682824012857141_6351908061930260148_n
10
Adres
Ferdinand Bolstraat 168H,
1072 LT Amsterdam

Brittons bakery

In 2016 opende Heather Brittons een knusse bakstudio in Amsterdam. Gespecialiseerd in Amerikaans/Canadees gebak, waarbij kwaliteit voorop staat. Elk beslag wordt zorgvuldig geproefd voor de oven. Het vaste menu wordt regelmatig herzien met kleine aanpassingen voor een nog betere smaak en uitstraling. Brittons staat voor ambacht, met recepten die decennia lang zijn doorgegeven, zoals "Grandma's Carrot Cake". Hoogwaardige ingrediënten, waaronder biologische eieren van de MiniRondeel zorgboerderij en zelfgemaakt vanille-extract met Madagaskar-bourbon vanillestokjes van Vanilla Venture, maken Brittons' gebak onweerstaanbaar.

20247641_1271052123006063_2226841384007274282_o
11
Adres
Ferdinand Bolstraat 158,
1072 LT Amsterdam

Gs

Gs is de ideale plek voor een Amerikaanse brunch. Naast de klassieke eggs benny hebben ze bijvoorbeeld ook een chicken waffle burger. Probeer daarnaast een bloody marry van hun speciale bloody marry menu. Hierop bieden ze wel 13 verschillende soorten bloody marry's.

333838177_1395182361027309_276174909384860799_n
12
Adres
Ruysdaelkade 251,
1072 AX Amsterdam

KID

Levy Byron, Joshua Styns en Steven Mamahit begonnen tijdens de pandemie. Het concept begon als pop-up en heeft nu een vaste locatie op de Ruysdaelkade.  Het menu is inmiddels fors uitgebreid. Yakitori van kip met kaffir lime en chillies. Chickenwings gevuld met een tartaar van garnaal en een saus van shi-take. Geroosterde kool met gefrituurde ui en een hollandaise saus. En natuurlijk de inmiddels beroemde kip-sandwiches in allerlei varianten zoals bijvoorbeeld de Sichuan spiced firied chicken met pickles en knoflookmayonaise geserveerd op een sake kasu bricohe broodje. KID schenkt er cocktails, bier en een kleine selectie wijn bij.

138563179_2882351158674170_6862466728073009234_n
13
Adres
Ceintuurbaan 113-115,
1072 EZ Amsterdam

Par Hasard

Café Par Hasard is een unieke combinatie van een friterie, café en bar. Hier ervaar je huisgemaakte friet van topkwaliteit, begeleid door eigen sauzen en biologische frikandellen. Daarnaast kun je verschillende snacks eten als fish & chips, Limburgs Zoervleis en Angus bavette.

mana-mana-depijp-1024×768
14
Adres
Eerste Jan Steenstraat 85H,
1072 NE Amsterdam

Mana Mana

Wie houdt van de Israëlische keuken moet zeker een keertje langsgaan bij Mana Mana in de Pijp. Dit restaurant bereidt dagelijks heerlijke gerechten uit het Midden-Oosten. Naast de kruidige humus en gerookte aubergine serveren ze ook frisse drankjes, zoals cocktails en sangria. De specialiteit van dit restaurant is de bloemkool. Dat verklaart ook hun slogan: 'In cauliflower we trust".

53700300_311590863045393_1981039547722498048_n
Schermafbeelding 2022-06-20 om 13.29.38
15
Adres
Albert Cuypstraat 20H,
1072 CT Amsterdam

Sababa

De eigenaar van Sababa wilde goede, perfecte falafel. Ze zijn verschillende combinaties gaan uitproberen, producten gaan proeven en zo ontstond hun perfecte falafel broodje. Geïnspireerd op de Israëlische keuken, heerlijk voor een snelle hap of om uitgebreid te eten met een biertje erbij.

298706175_468712925262104_5959360900902771633_n
16
Adres
Hobbemakade 63,
1071 XL Amsterdam

Hot&Hot

De naam van het restaurant is uiteraard geïnspireerd op de essentie van hotpot, maar daarbij gaat het  zowel om het eten eten als dat ons lichaam voortdurend warm moet blijven tijdens de maaltijd. Bij dit restaurant neem je plaats aan een tafel met ingebouwde, goudkleurige bakken. Je kiest zelf allerlei ingrediënten uit van de kaart. Ook is er een sausbar aanwezig waar je je eigen sausjes met lente-ui, sesamolie, sojasaus en meer samenstelt.

Schermafbeelding 2022-06-20 om 13.35.23
Schermafbeelding 2022-06-20 om 13.32.52
17
Adres
Albert Cuypstraat 31,
1072 CL Amsterdam

Restaurant Floreyn

Restaurant Floreyn, aan de Albert Cuypstraat, biedt fine dining in een Nederlands jasje. De eigenaar van restaurant Floreyn wil zijn gasten laten kennismaken met "écht goed Nederlands eten". Met verse producten van Nederlandse bodem stellen de chefs van dit restaurant de meest verfijnde menu's samen. Het restaurant heeft een fijne ontspannen sfeer en een prachtig modern interieur. De gerechten die worden geserveerd zijn stuk voor stuk verbluffend. Het restaurant is misschien iets aan de prijzige kant, maar het is het geld zeker waard.

Schermafbeelding 2022-06-20 om 13.39.17
18
Adres
Ceintuurbaan 342 Huis,
1072 GP Amsterdam

Sinne

In het rijtje Michelinsterren restaurants mag Sinne niet ontbreken. De gastronomische keuken en een relaxte sfeer maken de plek bij uitstek geschikt voor een lange lunch in het weekend. Sinne doet de Michelinster sinds 2015 eer aan dankzij sommelier Suzanne Sluijter en chef-kok Alexander Ioannou. Het restaurant heeft een eigentijds menu geïnspireerd op de Franse, Mediterrane en Oosterse keuken met keuze van 3 tot 8 gangen en een uniek wijnarrangement voor de liefhebber.

335969_460774987275260_2002095946_o
19
Adres
Ferdinand Bolstraat 74,
1072 LM Amsterdam

Toko Ramee

Midden op de Ferdinandbolstraat vind je Toko Ramee. Zoals al vermeld staat op de buitenkant van de toko is er een scala aan authentieke Indonesische en Aziatische producten. Het is een toko die aansluit op het familiare gevoel van de traditionele Indische en Chinees-Indische keuken, waar er voor iedereen iets te vinden valt. De toko is gevuld met geïmporteerde hapjes en drankjes en ook met kookgerei om zelf dingen thuis te maken. Van een complete rijsttafel tot huisgemaakt spekkoek: Toko Ramee neemt je maar al te graag mee in het proces om een heerlijke maaltijd samen te stellen. Mocht dat niet genoeg reden zijn om naar de toko toe te komen, vrees niet – toko Ramee heeft ook een catering service paraat!

Wijnbar-Paulus_1080x
20
Adres
Ceintuurbaan 348,
1072 GP Amsterdam

Wijnbar Paulus

Wijnbar Paulus aan de Ceintuurbaan is een gezellige bar met een huiselijke sfeer. Op de kaart staan talloze wijnen uit allerlei verschillende streken. Daarnaast serveren ze ook lekkere hapjes, zoals bitterbalen en burrata. Als je zin hebt in een verrassing kun je ook kiezen voor de wijntasting. Je kiest zelf de kleuren en de hoeveelheid glazen en de eigenaar kiest de wijn. Heb je tijdens een tasting een nieuwe favoriete wijn ontdekt? Dan heb je geluk; bij Wijnbar Paulus kun je namelijk ook een fles wijn kopen om mee naar huis te nemen.

95281872_2562778130634575_4147568656965959680_n
21
Adres
Van Ostadestraat 147 H,
1072 SW Amsterdam

Massimo Gelato

Bij Massimo kan je het hele jaar door terecht voor overheerlijke, authentieke Italiaanse versnaperingen. Massimo staat onder de Amsterdammers vooral bekend om het bijzondere, smaakvolle ijs. De keuze in smaak is ruim en het personeel denkt graag met je mee (als je geluk hebt, laten ze je proeven!). Ook kan je er terecht voor heerlijke koffie. Er zijn maar weinig plekken die tippen aan Massimo. Daarnaast is het interieur overzichtelijk en verwelkomend. Af en toe moet je er een tijdje in de rij voor over hebben, maar dan heb je ook wat

335762138_934316891080636_1785099370396513561_n
22
Adres
Tweede van der Helststraat 18H,
1072 PD Amsterdam

Badeta

Badeta begint langzaamaan naam te maken in de stad met ondertussen twee locaties. Het begon in De Pijp en heeft nu ook een vestiging in de Watergraafsmeer. De twee oprichters hebben de missie om in elk stadsdeel een locatie te openen.  Deze koffiebranderij verkoopt heerlijke koffie met hun eigen melanges en diverse huisgemaakte lekkernijen. Duurzame koffie staat centraal, afkomstig van kleinschalige boeren met milieuvriendelijke boerderijen en goede arbeidsomstandigheden.

Schermafbeelding 2022-05-18 om 18.09.29
Schermafbeelding 2022-05-18 om 18.51.14
23
Adres
Sarphatipark 34,
1072 PB Amsterdam

Scandinavian Embassy

In 2013 opende dit koffietentje. Ze serveren top kwaliteit koffie en zoetigheden, geïnspireerd op de Scandinavische keuken. Er staat vaak een rij tot aan buiten en dat is niet zonder rede. Je proeft dat er hier op hoge kwaliteit eten en koffie wordt bereid. Gelegen naast het altijd gezellige Sarphatipark is het perfect om even op het terras te zitten en uit te kijken, of een parkwandelingetje met een koffie to go te maken.

Interieur
369356035_18082923058373902_8296318346132912036_n
341529373_175228422076594_9021816304704622077_n
24
Adres
Govert Flinckstraat 114,
1072 EL Amsterdam

Groen + Akker

In het hart van de Pijp in Amsterdam vind je Groen+Akker, de winkel voor interieur, design en originele cadeaus. Met een uitgebreid assortiment van gerenommeerde merken zoals HAY, Vitra, ferm LIVING, Serax, Arhoj en raawii  bieden ze een unieke selectie aan stijlvolle items. Elke twee maanden maakt Groen+Akker een tijdelijke presentaties in samenwerking met getalenteerde ontwerpers, illustratoren en kunstenaars.

Boodschappen
Schermafbeelding 2022-06-20 om 14.08.03
25
Adres
Ceintuurbaan 320,
1072 GP Amsterdam

Bakkerij Mater

Zuurdesembakkerij Mater is niet zomaar een bakkerij. Ex-bankier Willem opende deze echte, eerlijke en duurzame bakkerij op zijn 65e toen hij de bankwereld omruilde voor brood. Het is ondertussen een familiebedrijf geworden waar passie, eerlijkheid en de natuur centraal staan. Over alles is hier nagedacht. Het graan komt van speciaal land dat niet geploegd is dat zorgt voor een betere bodemkwaliteit en de bakkerij is van het gas af. Je kunt hier alles op basis van zuurdesem kopen, van heerlijke broden tot knapperige croissants.

De Letterzetterij

De Letterzetterij

‘Het vakwerkhuis’, een voormalig gereedschap bergplaats voor de Dienst der Publieke Werken

‘Het vakwerkhuis’, een voormalig gereedschap bergplaats voor de Dienst der Publieke Werken

Samengesteld; een collectie woningen met luxe badkamers

Samengesteld; een collectie woningen met luxe badkamers

Onlangs bekeken
Bekijk het overzicht

Deze site maakt gebruik van cookies.

Voor welke cookies geef je akkoord?