Deze nieuwbouw kantoorruimte in de plint van gebouw ‘Lariks’ in de Houthaven aan de westkant van Amsterdam is maar liefst 693 m² VVO groot. De casco ruimte is volledig gelegen op de begane grond en door haar hoekligging voorzien van een breed front met veel grote raampartijen waardoor er een optimale daglichttoetreding is. In de parkeergarage onderdeel uitmakende van gebouw Lariks zijn parkeerplaatsen beschikbaar.  

De kantoorruimte is uitermate geschikt voor een creatieve kantoorgebruiker, sportschool of praktijkruimte voor medische dienstverlening die veel waarde hecht aan eigen identiteit, goede bereikbaarheid en parkeren. Daarnaast is de ruimte ook geschikt voor consumentverzorgende dienstverlening, zoals een kapper, nagelstudio of schoonheidssalon. Deelverhuur is mogelijk in units vanaf circa 143 m² VVO.

Over Lariks
Lariks’ bestaat uit een woongebouw van Woonstichting Lieven de Key met een commerciële plint van Lieven de Stad. 

Lariks’ bestaat voornamelijk uit semi-zelfstandige jongerenwoningen, een woonconcept dat betaalbaar en comfortabel is. Het woongebouw omvat naast woningen twee grote inpandige fietsenstallingen voor bewoners, een gemeenschappelijke wasruimtevoorziening en een binnentuin. Op de begane grond komen aan twee zijden bedrijfsruimten die worden aangeboden door Lieven de Stad en aan de andere twee zijden woningen. Centraal in het blok zit een parkeergarage. Het gebouw heeft twee hoofdingangen voor de toegang tot de bovenwoningen. Deze woningen liggen als een krans om de gemeenschappelijke binnentuin op de eerste verdieping heen. In deze tuin kunnen de jongeren elkaar ontmoeten, samen tuinieren en ontspannen.

Op het Revaleiland, één van de eilanden in de Houthaven, worden naast gebouw ‘Lariks’ ook nog drie andere gebouwen (Afzelia, Mahonie en Meranti) gerealiseerd naar ontwerp van Het Amsterdamse Architectenbureau M3H en vernoemd naar houtsoorten. Op deze plek losten vroeger vrachtschepen uit de hele wereld hun boomstammen. De naam doet eer aan de rijke handelsgeschiedenis die deze plaats kent.

De moderne interpretatie van de Amsterdamse Schoolstijl is terug te zien in de baksteenarchitectuur van het pand, met bijzondere motieven en terugvouwende metselwerk vlakken. Kenmerkend voor het gebouw is het universele karakter met vier voorgevels. 

Buurt en hotspots 
Het Revaleiland maakt onderdeel uit van een van de zeven unieke eilanden die de wijk Houthaven kent. Deze nieuwe duurzame woonwijk in Amsterdam West is direct aan Het IJ gelegen. De eilanden zijn autoluw ingericht, voorzien van groen en omgeven door veel water. De gebouwen op deze eilanden krijgen hooguit 4 of 5 verdiepingen en hebben ieder een eigen karakter dat tot uitdrukking komt in de architectuur. Er is veel variatie in bebouwing, bestemming en bewoning. Naar verwachting is in 2025 de vernieuwde Houthaven gereed. 

Aan de voet van het Revaleiland is het nieuw aangelegde Houthavenpark en op de kop ligt een groot waterplein. Door het fraaie uitzicht over de haven, de goede bereikbaarheid en de aanwezige horeca is het plein een fijne ontmoetingsplek. Op vijf minuten loopafstand is ook de Spaarndammerstraat gelegen met vele voorzieningen en horecagelegenheden.

Bereikbaarheid
De kantoorruimte is goed bereikbaar met zowel het openbaar vervoer als met eigen vervoer vanaf zowel de snelweg als vanuit de binnenstad. Dit laatste dankzij de in 2018 geopende Spaarndammertunnel. Vanaf de Ringweg A-10 West is middels afslag 1 (Amsterdam-Hemhavens) via de S101 de kantoorruimte te bereiken. Via de tunnel is ook de centrumring S-100 te bereiken. 

Op loopafstand is aan de Spaarndammerstraat de bushalte van de lijnen 22 en 48 gelegen die een directe verbinding met het Centraal Station geven. Op fiets- en/of loopafstand is tevens de Pontsteiger gelegen. Hiervandaan vertrekken veerdiensten F5, F6 en F7 naar opvolgend het Centraal Station, naar de Distelweg aan de overzijde van het IJ en naar het NDSM terrein eveneens in Amsterdam Noord. Per fiets is het Centraal Station in 10 minuten te bereiken. 

Parkeergelegenheid
Parkeren is mogelijk in de parkeergarage onderdeel uitmakende van gebouw ‘Lariks’. Momenteel zijn er 12 parkeerplaatsen voor verhuur beschikbaar. 

Kenmerken
Revaleiland 174, Amsterdam
Overige kenmerken

Oppervlakte 
De totale oppervlakte bedraagt circa 693 m² VVO kantoorruimte en is gelegen op de begane grond. Deelverhuur is mogelijk vanaf circa 143 m² VVO kantoorruimte.

Opleveringsniveau
De kantoorruimte wordt opgeleverd in huidige casco staat, schoon en ontruimd, met onder andere de volgende voorzieningen:

  • zelfstandige entree;
  • vrije hoogte van ca. 3,80 meter;
  • ruwe betonvloer;
  • meterkast voorzien van aansluiting op stadsverwarming, elektra, water en kabelnetwerk;
  • ventilatieroosters in gevel;
  • afzuigkanalen luchtbehandeling;
  • mogelijkheid tot plaatsen van airco-installatie.

Huurprijs kantoorruimte
€ 175,- per m² per jaar te vermeerderen met omzetbelasting.

Huurprijs parkeerplaats
€ 2400,- per parkeerplaats per jaar te vermeerderen met omzetbelasting.

Servicekosten
Pro memorie.

Huurder dient zelf contracten af te sluiten met de betreffende leveranciers voor de levering van stadsverwarming/water/elektra en eventuele overige voorzieningen.

Bestemming
Publiek-/privaatrechtelijk is de bestemming kantoorruimte, maatschappelijke dienstverlening en consumentverzorgende dienstverlening van toepassing.

Monumentale status 
Niet van toepassing.

Energielabelklasse
Na afbouw van het gehuurde door de huurder zal in opdracht van verhuurder het energielabel worden opgesteld.

Betalingsverplichting
Per maand bestaat de betalingsverplichting van huurder uit de huurprijs plus de servicekosten, beide te vermeerderen met btw en te voldoen bij vooruitbetaling.

Huurder geeft een machtiging tot automatische incasso af.

Huurtermijn
Vijf jaar met eenmalig een verlengingsperiode van vijf jaar. Daarna wordt deze vervolgd voor een periode van onbepaalde tijd.

Huuringangsdatum
In nader overleg. Verwachtte oplevering medio april 2023.

Zekerheidsstelling
Huurder dient een waarborgsom/bankgarantie (model ROZ) te stellen ter grootte van tenminste drie maanden huur en servicekosten, beide te vermeerderen met btw.

Huurvoorwaarden
Op basis van de Modelhuurovereenkomst kantoorruimte en andere bedrijfsruimte in de zin van artikel 7:230a BW, zoals opgesteld door de Raad voor Onroerende Zaken (R.O.Z. model februari 2015), met de bijbehorende algemene bepalingen, eventueel door verhuurder aan te vullen met bijzondere bepalingen.

Btw-plicht
Huurder verklaart dat hij voor tenminste 90% met omzetbelasting belaste prestaties verricht. Indien huurder op enig moment niet meer aan dit criterium voldoet, zal er van rechtswege sprake zijn van omzetbelasting vrijgestelde verhuur. Alsdan wordt de overeengekomen kale huurprijs, exclusief omzetbelasting, zodanig verhoogd dat het voor verhuurder ontstane financiële nadeel volledig door huurder wordt gecompenseerd.

Overige bepalingen
Revaleiland 174, Amsterdam

Voorbehoud Broersma Werken
Deze vrijblijvende informatie is met zorgvuldigheid samengesteld. Voor de juistheid hiervan wordt door Broersma Werken geen aansprakelijkheid aanvaard, noch kan hieraan enig recht worden ontleend.

Deze informatie is niet bedoeld als aanbod. Door aanvaarding van de vermelde condities of het uitbrengen van een, daarvan al dan niet afwijkend, aanbod worden Broersma Werken noch haar opdrachtgevers op enige wijze gebonden, ook niet tot het doen van enig tegenbod. Broersma Werken treedt uitdrukkelijk slechts op als adviseur van haar opdrachtgever en niet als gevolmachtigde namens haar. Voorts geldt dat tussen partijen eerst juridisch binding kan ontstaan nadat definitieve overeenstemming is bereikt ter zake van al hetgeen zij met elkaar beogen te regelen en deze overeenstemming bovendien is vastgelegd in een schriftelijke en namens beide partijen rechtsgeldig ondertekende overeenkomst, waarbij artikel 3:39 BW overeenkomstige toepassing vindt.

Broersma Werken is een besloten vennootschap, ingeschreven bij de Kamer van Koophandel onder nummer 34121232. Broersma Werken verleent al haar diensten op grond van de Algemene Voorwaarden NVM voor professionele opdrachtgevers Versie februari 2011. De algemene voorwaarden zijn van toepassing op alle opdrachten die aan haar zijn of worden verstrekt en/of op de levering van al haar diensten en producten aan wie dan ook. De algemene voorwaarden worden op verzoek toegezonden en zijn tevens te downloaden op broersma.nl. De aansprakelijkheid van Broersma Werken is in alle omstandigheden en jegens eenieder beperkt tot het bedrag dat door de beroepsaansprakelijkheidsverzekering van Broersma Werken in het desbetreffende geval wordt uitgekeerd.

Toelichtingsclausule NEN2580
De Meetinstructie is gebaseerd op de NEN2580. De Meetinstructie is bedoeld om een meer eenduidige manier van meten toe te passen voor het geven van een indicatie van de (bruto vloer- /verhuurbaar vloer-/gebruiks-) oppervlakte. De Meetinstructie sluit verschillen in meetuitkomsten niet volledig uit, door bijvoorbeeld interpretatieverschillen, afrondingen of beperkingen bij het uitvoeren van de meting.

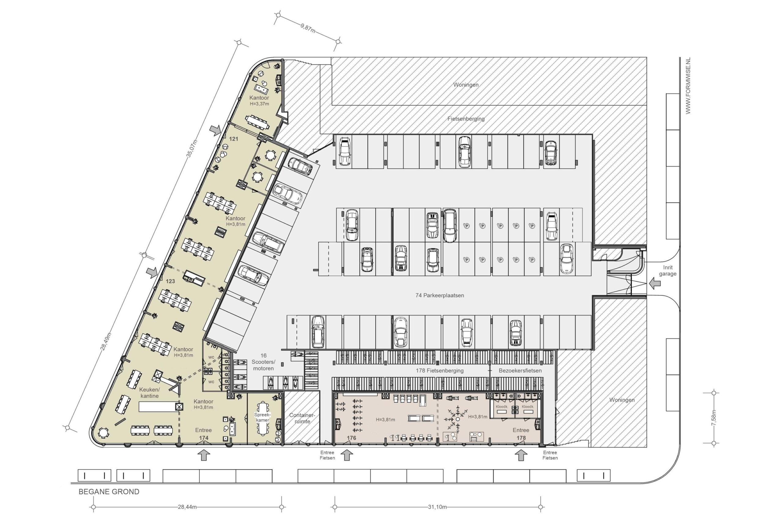
Plattegrond
Revaleiland 174, Amsterdam
B101269-1901165-Revaleiland-174,-Amsterdam-139603366
B101269-1901165-Revaleiland-174,-Amsterdam-139603369
Documenten
Revaleiland 174, Amsterdam
Locatie
Revaleiland 174, Amsterdam
Kunst & cultuur
IMG_6821-2-1024×683
North-Sea-Jazz-_-The-Millen-House-IMG_2386-2-768×768
01
Adres
Haparandaweg 57,
1013 BD Amsterdam

The Millen House

Niek, een gepassioneerde verzamelaar sinds zijn jeugd, evolueerde van schelpen naar 20e-eeuws design. In 2011 startte hij zijn eigen bedrijf, gericht op vintage design en interieurprojecten. In 2021 bundelde hij zijn ervaringen in The Millen House. Hier presenteren ze een zorgvuldig samengestelde collectie kunst en design, een ode aan esthetiek en vakmanschap. Het is geen gewone winkel, maar een inspirerende plek waar je prachtige items kunt bewonderen, kopen en hun verhalen kan ontdekken.

Boeg
02
Adres
Oostzaanstraat 45,
1013 WG Amsterdam

Museum het Schip

Museum het Schip is een museum over de Amsterdamse school; een kunst- en architectuurstroming uit de vroege 20ste eeuw. Deze stroming is bekend vanwege de sterke woonidealen waarmee zij verbonden is. Het woonblok waarin het museum is gevestigd is misschien wel net zo speciaal als het museum zelf. Bijzonder is het originele postkantoor in het gebouw; het enige postkantoor in heel Nederland dat sinds de jaren 20 onaangetast is gebleven. De sierlijke stijl van architect Michel de Klerk is door het hele gebouw heen te herkennen. In zijn ontwerpen is nagedacht over elk detail.

Schermafbeelding 2022-06-20 om 15.04.08
03
Adres
Planciusstraat 7,
1013 MD Amsterdam

Galerie Onrust

Galerie Onrust werd in 1986 opgericht door Milco Onrust en is tegenwoordig gehuisvest aan de Planciusstraat 9. De lichte en ruime galerie legt de nadruk op de hedendaagse schilderkunst. Boudi Eskens is de huidige eigenaresse en de meeste kunstenaars die zij vertegenwoordigen zijn al vele jaren bij hen, met wie zij talloze prachtige tentoonstellingen en publicaties hebben gemaakt.

mcdonald2021viewToets-wall-HlmpleinA700
04
Adres
Planciusstraat 9-A,
1013 MD Amsterdam

Galerie van Gelder

Van dinsdag tot zondag zijn de deuren van Galerie van Gelder geopend en tonen ze, bij voorkeur, concept gerichte kunst. Jonge en oude, bekende en opkomende kunstenaar zijn in het tentoonstellingsprogramma te vinden, dat bestaat uit tekeningen en objecten maar ook film, performances en installaties.

Het-Ketelhuis
05
Adres
Pazzanistraat 4,
1014 DB Amsterdam

Het Ketelhuis

Het Ketelhuis is een filmtheater dat gevestigd is op het Westergasterrein. Het werd gesticht als broedplek en vertoningsplek voor de Nederlandse filmindustrie in 1999. Er worden zowel artistieke als commerciële speelfilms vertoond, maar ook documentaires en korte films zijn er te bekijken. Het ketelhuis heeft een gezellig en sfeervol café-restaurant waar ze alleen maar vegetarische gerechten serveren. Ze hebben een voordeelmenu als je lunch of diner combineert met een film en in de zomermaanden is er ook een terras.

Gallery
06
Adres
Tussen de Bogen 91,
1013 JB Amsterdam

Elliott Gallery

Als je van fotografie houdt dan ben je bij ElliotHalls aan het goede adres. Het hele jaar door houdt deze galerie uitgebreide tentoonstellingen met het werk van historische en hedendaagse fotografen. Hun selectie van kunstenaars omvat internationaal bekende namen wiens werk regelmatig te zien is in grote musea en bedrijfscollecties. De galerie heeft ook een Prentenkabinet waar klanten, fotografie-experts en liefhebbers op afspraak hun collectie kunnen bekijken. ElliottHalls Gallery laat je kennis maken met een een grote maar ook diverse groep van veelgeprezen fotografen uit de internationale fotografiegemeenschap.

Schermafbeelding 2022-06-20 om 15.19.32
07
Adres
Westerdok 824,
1013 BV Amsterdam

The Ravestijn Gallery

The Ravestijn Gallery werd in 2012 in Amsterdam opgericht door Jasper Bode en Narda Van 't Veer met een focus op onderzoekende en provocerende benaderingen van hedendaagse fotografie. En daarin zijn ze geslaagd. De galerie vertegenwoordigd verschillende nationale en internationale experimentele kunstenaars die het vermogen van fotografie op allerlei verschillende manieren laten zien. Deze moderne benadering van de hedendaagse fotografie maakt de tentoonstellingen van De Ravestijn Gallery zeer interessant. Maar, daarnaast zijn de kunstwerken ook een groot esthetisch plezier om naar te kijken en misschien zelfs een goede inspiratiebron voor de aankleding van een nieuw huis?

Eten & drinken
08
Adres
Pontsteiger 343,
1014 ZP Amsterdam

Café Pontsteiger

In het meest spraakmakende gebouw van de stad vind je Café Pontsteiger, een gezellig buurtcafé dat alles in huis heeft om een dag te vertoeven, te dineren of on the go mee te nemen. Hoge plafonds en oneindige ramen met een weergaloos uitzicht over het IJ.  Heerlijk ontsnappen aan de drukte van de stad en eindeloos turen over het IJ doe je hier in stijl

chefs table
wijn
09
Adres
Spaarndammerstraat 49,
1013 ST Amsterdam

Compatir

Bij Compartir in Amsterdam-West kun je genieten van een gezellige borrel of een uitgebreid diner. Het knusse restaurant is tevens een wijnbar, waarbij kleine en middelgrote gerechten worden gedeeld. Er is keuze uit heerlijke kazen, oesters en flammkuchen, maar je kunt ook voor een compleet hoofdgerecht gaan, zoals opperdoezer met trompet de la mort, oxalis en gerookt knoflook beurre blanc.

10
Adres
Haparandadam 50,
1013 AK Amsterdam

Pont 13

Een oude veerboot omgebouwd tot restaurant doet dienst als buurtcafé alwaar je heerlijk kunt borrelen en dineren. Het menu biedt vlees- en visgerechten klaargemaakt op een echte houtskoolgrill. Op het terras geniet je van een heerlijk ambachtelijk biertje of wijntje in de zon, terwijl je de boten voorbij ziet varen op het IJ. Geen zonneschijn? Het interieur van Pont 13 met zijn ruige en industriële karakter, nodigt uit om je heerlijk over te geven aan de service van de bemanning.

118787448_4557671827584148_8928913685051948838_n
11
Adres
Spaarndammerstraat 424,
1013 SZ Amsterdam

Restaurant Freud

Restaurant Freud is meer dan alleen een goed restaurant. Het restaurant is een leerwerk-bedrijf en onderdeel van de sociale onderneming Roads. Dit houdt in dat Restaurant Freud zich ontfermt over psychisch 'kwetsbare' mensen die een afstand hebben tot de arbeidsmarkt. Naast aandacht voor het eten - geïnspireerd door de mediterrane keuken - is er ontzettend veel aandacht en zorg voor mensen: zowel voor het personeel als de gasten. Eenzelfde zorg gaat naar de producten die het restaurant uit kiest, op basis van criteria die "goed zijn voor samenleving en milieu". Mocht je geen tijd hebben om met het bedrijf langs te gaan op de Spaarndammerstraat is er gebruik te maken van de catering of cadeaubonnen voor het restaurant.

Schermafbeelding 2022-06-20 om 14.55.04
Schermafbeelding 2022-06-20 om 14.56.04
12
Adres
Van Diemenstraat 408,
1013 CR Amsterdam

BAK

Voormalig pop-up restaurant BAK heeft nu een eigen vaste plek aan de Van Diemenstraat in Amsterdam. Gelegen aan het water in de Amsterdamse Houthavens stelt BAK dagelijks menu’s vast met ingrediënten die op dat moment het beste zijn. Je kan gaan voor wine airing en dat is zeker aan te raden. Het wijn assortiment van BAK is groot en van hoge kwaliteit. De bediening is goed en het eten is ook fantastisch. BAK is een absolute aanrader voor de echte eet en restaurant liefhebber.

REM-eiland-Haparandadam
13
Adres
Haparandadam 45-2,
1013 AK Amsterdam

REM Eiland

Op 22 meter hoogte boven het water dineren in een voormalig piratenradio en -televisiestation. Dit restaurant biedt een prachtig uitzicht over het IJ, de Minervahaven en de nieuwe architectuur van de Spaarndammerhout. Chef Bobby Rust (o.a Ron Gastrobar, Librije, Oud Sluis) zwaait hier de scepter. Volkskrant culinair recensent Hiske Versprille beoordeelde het restaurant onlangs met een 8,5.

14
Adres
Westerdoksdijk 715a,
1013 BX Amsterdam

Café Westerdok

Café Westerdok was oorspronkelijk een havencafé. Tegenwoordig moet je er zijn als je van bier houdt. Ze schenken wel 86 verschillende soorten.

Schermafbeelding 2022-06-20 om 14.57.04
Schermafbeelding 2022-06-20 om 14.57.22
15
Adres
Zandhoek 14,
1013 KT Amsterdam

De Gouden Reael

‘Alsof je een Franse woonkeuken binnenloopt met allerlei keukenattributen, kookboeken en houten tafels met daarop een linnen servet. Om de twee weken is er een nieuw menu. Maar er zijn ook klassiekers, zoals oesters en pâté de campagne. Vol en diep van smaak, pure comfort food. Subliem is de vijgentaart met pâte sucrée, marmelade en sorbet van reine claude, zoals je ze alleen in Frankrijk tegenkomt. Franse bistro op z’n best, een nieuwe telg van en typisch voor de familie Caron.’

20220414-Cantine-de-Caron-©-Chantal-Arnts-17
20220414-Cantine-de-Caron-©-Chantal-Arnts-268
16
Adres
Pazzanistraat 8,
1014 DB Amsterdam

Cantine de Caron

Cantine de Caron in Westerpark is alweer het vierde restaurant van de bekende chef Alain Caron en zijn zonen. Het restaurant begon een paar jaar geleden als pop-up Grand Caron op het Westergasterrein, maar het werd al snel duidelijk dat ze konden blijven onder de naam Cantine. Binnen deze voormalige fabrieksruimte bevindt zich een brasserie die een warm welkom biedt, of het nu gaat om een snelle lunch of een uitgebreid diner. Of je nu binnen plaatsneemt aan een van de tafels of buiten op het zonovergoten terras met uitzicht over het Westerpark. Op de menukaart ontdek je vertrouwde Franse gerechten met een mediterrane sfeer. Terwijl de wijnkaart schittert met wijnen uit vooraanstaande regio's in heel Frankrijk.

347653663_898089261255143_3585709706129854136_n
17
Adres
Haarlemmerplein 43,
1013 HS Amsterdam

Wakuli

Wakuli ontleent aan het Swahili-woord 'wakulima', wat boer betekent. Hier vind je kwaliteitskoffie die op duurzame wijze is verkregen tegen betaalbare prijzen.  Ze halen hun bonen bij kleinschalige boeren die groene productie produceren en roosteren ze op de beste manier mogelijk voor maximale smaak. Je kunt hier alle gebruikelijke koffiesoorten krijgen, evenals heerlijke ijskoffie en nitro cold brew. Last but not least, hebben ze een aantal zoete en hartige lekkernijen beschikbaar, van empanadas tot broodjes en croissants.

18
Adres
Danzigerkade 179,
1013 AP Amsterdam

Lars Amsterdam

Lars Amsterdam is het geesteskind van Lars Scharp en Floor Wiggers. Afkomstig van tweesterrenrestaurant Aan de Poel vond het tweetal het tijd voor een eigen restaurant.  Je kunt er terecht voor een lunch of diner op niveau (1 Michelin ster). In de zomer geniet je op het terras van een weids uitzicht over het IJ.

Schermafbeelding 2022-05-18 om 18.27.43
19
Adres
Pazzanistraat 39,
1014 DB Amsterdam

Espressofabriek

De Espressofabriek heeft meerdere vestigingen in Amsterdam; bij de Westergas, IJburg en bij Zeeburgereiland. Bij de Espressofabriek kun je de lekkerste koffie, cappuchino, en natuurlijk espresso halen. De uitstraling is hip en industrieel en je kunt zowel binnen als buiten heerlijk zitten. Wat extra leuk is aan deze zaak is dat zij ook een eigen koffiebranderij hebben. In de winkels verkopen zij ook hun eigen producten zodat je ook thuis van een kopje verse koffie kan genieten.

318169099_149781107804994_4464733954303652127_n
368245352_268665032583267_6422866555758226002_n
20
Adres
Ms. van Riemsdijkweg 306,
1033 RD Amsterdam

Contrast

Basken hebben een diepe band met de zee, eeuwenoude connecties die teruggaan tot de tijden van ontdekkingsreizigers.  Een restaurant aan het water, uitkijkend over de Amsterdamse haven en vrachtschepen die de oceaan oversteken is dan ook logisch voor een Basque chef. Contrast combineert kunst en eten en bouwt op duurzaamheid zonder misbruik van het woord. Chef Inaki kookt sterrenniveau eten met uitsluitend groenten en vis. Hier krijg je elk deel van de vis geserveerd, van geblazen blaas tot staart of kop.

Interieur
21
Adres
Spaarndammerplantsoen 42,
1013 XT Amsterdam

Vakvrouwen

Al 40 jaar een toonaangevend collectief van zelfstandige vrouwen in diverse technische disciplines. Gespecialiseerd in het op maat ontwerpen en vervaardigen van unieke meubelstukken. Of het nu gaat om een handgemaakt meubelstuk of het volledige (her)inrichten van een huis of kantoor. De heldere communicatie, intuïtie, perfectionisme en duurzaamheid vormen de kern van de onderscheidende werkwijze. Ontdek in de winkel of op de website het uitgebreide portfolio met unieke meubelcreaties.

DSC_0547.social.media_
DSC_0540.social.media_
22
Adres
Rigakade 33-35,
1013 BB Amsterdam

Broeinest

Broeinest is sinds augustus 2023 Bigger & Better in Amsterdam, gelegen in de Houthavens. Hier vinden ontwerpers en makers onafhankelijk advies over producten, merken en materialen. Wij bevorderen verbinding, delen kennis en tillen gezamenlijk interieurprojecten naar nieuwe hoogten. Elke locatie heeft een unieke samenstelling van partners. Broeinest Amsterdam biedt de ideale omgeving voor projectontwikkeling, met ruimte voor teams van 4 tot 30 personen. Plan een afspraak op locatie of neem contact op met het team voor alle mogelijkheden.

Boodschappen
23
Adres
Pazzanistraat 7,
1014 DB Amsterdam

Sunday Market

Elke eerste zondag van de maand is er Sunday Market Westergas. Een hippe funky shopping plek voor veel verschillende dingen. Art, fashion, design, vintage & deli, eten uit alle werelddelen, muziek en nog veel meer. Het Westerpark is door sommigen tot het leukste park van Amsterdam genoemd, en mede dankzij deze markt snappen wij waarom. Tip: in de lente staat de bloesem hier prachtig in de bomen, de moeite waard om te gaan kijken!

24
Adres
Haarlemmerplein,
1013 HS Amsterdam

Boerenmarkt Haarlemmerplein

De boerenmarkt Haarlemmerplein is er elke woensdag van 10:00 tot 17:00. Ze verkopen verse producten. Op de markt worden voornamelijk verse producten verkocht. Bijzonder is dat achter de kramen vaak de mensen staan die bij de productie van het voedsel zijn betrokken. Dat maakt de markt even net wat anders en ook nog eerlijker. Als je vragen over voedsel of de productie ervan hebt, kan je deze meteen aan de experts stellen wat een bezoekje aan de Boerenmarkt Haarlemmerplein, net wat specialer maakt!

Samengesteld; een collectie woningen met bijzondere open haarden

Samengesteld; een collectie woningen met bijzondere open haarden

Buurtgids: De Pijp rondom het Sarphatipark

Buurtgids: De Pijp rondom het Sarphatipark

Een selectie van lekkere en betaalbare broodjes in Amsterdam

Een selectie van lekkere en betaalbare broodjes in Amsterdam

Onlangs bekeken
Bekijk het overzicht

Deze site maakt gebruik van cookies.

Voor welke cookies geef je akkoord?